Seggiano ! Bebaubares Grundstück in Panoramalage mit Olivenhain und Weinberg I Immobilie Toskana

010
020
030
040
100
110

Kaufpreis: 160.000 €

Courtage: f.d. Käufer 3,66 % inkl. MwSt.

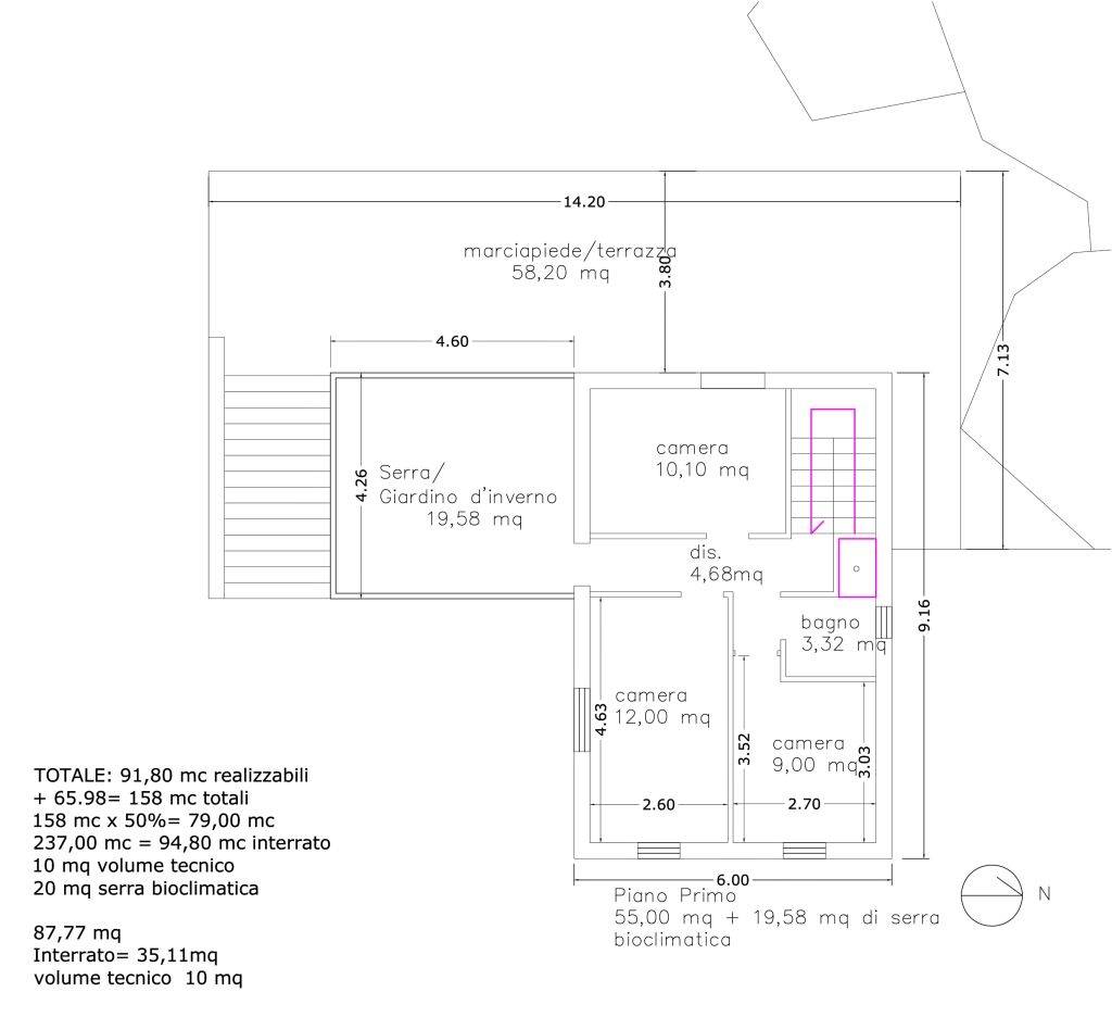
290 Planimetria piano terra 300 Planimetria piano primo
externe Objnr
IT-462-KA
Gebiet
Grosseto
Ort
Seggiano
Objekttyp
Bauern- & Landhaus
Wohnflaeche
Bruttofläche
155 m²
Grundstück
Grundstück
39.500 m²
Zimmer
Zimmer
5
Schlafzimmer
Schlafzimmer
3
Badezimmer
Badezimmer
2
Lage
Lage
Panoramablick
Zustand
Zustand
Erstbezug
Pool
Pool
Nein
Brunnen
Brunnen
Ja
Grosseto

Ansprechpartner

Frau Nicole Siedersberger-King

Nicole Siedersberger-King

Telefon

0049 (0)173 633 28 11

info@italien-hauskauf.de

Zum Kontaktformular

Kontaktieren Sie uns! Schnell, direkt, einfach.

Deine Anfrage zu der Immobilie „Seggiano ! Bebaubares Grundstück in Panoramalage mit Olivenhain und Weinberg I Immobilie Toskana“ (IT-462-KA)

Weitere Immobilien

Zum Kauf

Seggiano - Sorgfältig renoviertes Bauernhaus aus Stein...

Grosseto / Seggiano

Kaufpreis: 700.000 €

Bruttofläche

220 m²

Grundstück

30.000 m²